| 4 Beds | 2 Baths | Approx 4000 m2 | 6 car spaces |
From the moment you arrive, Applewood enchants with its undeniable charm and historic allure. A beautifully preserved homestead dating back to circa 1890, this remarkable property welcomes you with a picture-perfect bullnose veranda and ornate front door, setting the tone for the character and grace that lies within.
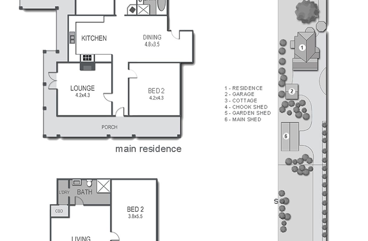
Set well back from the road on approximately one acre, the layout offers remarkable flexibility for multi-generational living, dual occupancy, or an income-generating bed and breakfast. The main residence sits proudly at the front of the block, while a self-contained two-bedroom cottage provides a private retreat at the rear, ideal for guests or extended family.
A tree-lined driveway winds past a mature mini orchard to a secure gated entry and double garage, creating a safe and serene environment for children and pets to roam freely. Enjoy the rural lifestyle with fresh eggs from the established chicken coop and the quiet beauty that defines this unique property.
Rich in period detail, the main residence showcases hallmark features of the era, soaring 13ft ceilings, cedar-lined walls, pressed tin accents, double-hung windows, decorative leadlight, timber-panel doors, and polished floorboards. The thoughtfully zoned floorplan includes a country-style kitchen, formal dining room, two separate living areas, and a beautifully renovated laundry-to-bathroom conversion that remains sympathetic to the home’s heritage.
Step outside and relax under the canopy of a magnificent century-old English Elm, which gracefully separates the main home from the rear cottage, an idyllic setting for entertaining or simply unwinding. For those seeking lifestyle potential, the rear cottage is turnkey-ready for use as a guesthouse or short-stay accommodation.
Further enhancing the appeal is the outstanding infrastructure on offer. A purpose-built 8m x 16m steel shed features a 3.6m high, fully insulated roof, epoxy-finished slab (upgraded for a hoist), two single roller doors with mezzanine storage above, a large roller door, separate entry door, and three-phase power, perfect for trades, storage, or a home-based business.
Energy efficiency is a standout, with a 20.21kW solar array, 20kW three-phase inverter, and 14kW Tesla battery providing significantly reduced energy costs, often reducing power bills to near zero. 3 X 5,000L water tanks adds further self-sufficiency to this well-appointed property.
Located just 3km from Somerville’s vibrant township, Applewood offers easy access to shops, schools, cafes, and public transport, along with excellent connectivity via Peninsula Link and Dandenong-Hastings Road. With prominent positioning off Eramosa Road, it also offers exciting potential for a home-based business or guest accommodation.
Once part of a thriving apple orchard, Applewood is more than just a home, it’s a rare piece of Somerville’s heritage and an opportunity to secure a truly unique lifestyle property.
Property Highlights
Circa 1890 historic homestead on approx. 1 acre
Flexible layout with main residence and self-contained 2-bedroom rear cottage
Mains gas and hydronic heating
2 slow-combustion wood fires and potbelly stove
Integrated Asko dishwasher
900mm freestanding SMEG oven and cooktop
Water filtration system
8m x 16m steel shed (built 2021) with solar, Tesla battery and 3-phase power
20.21kW solar array, 20kW three-phase inverter and 14kW Tesla battery
3 X 5000L water tanks
Established orchard and chicken coop
Double garage and secure gated entry
43a Barkly Street, Mornington
| 3 beds | 2 baths | 1 car space |
14a Spray Street, Mornington
| 4 beds | 3 baths | 2 car spaces |
47 Canna Street, Dromana
| 5 beds | 3 baths | 2 car spaces |
28A Mitchell Street, Mornington
| 4 beds | 2 baths | 2 car spaces |
117 Herbert Street, Mornington
| 3 beds | 2 baths | 2 car spaces |


